Lighthouse Property Services gebruikt cookies om de website naar behoren te laten werken, om functies voor social media te bieden en om onze website te analyseren. Op onze website kun je ons Cookiebeleid en AVG & Privacybeleid vinden.

Verspronckweg 150 C36, Haarlem

Kenmerken

Prijs
€ 2.185 p.m. ex.
Inrichting
Kaal
Wijk
Kleverpark-noord
Postcode
2023 BP Haarlem
Woningtype
Maisonnette
Bouwjaar
2021
Soort bouw
Bestaande bouw
Parkeren
Garage, Parkeerplaats
Kamers
2
Slaapkamers
1
Oppervlakte
93m²
Inhoud
364m³
Oplevering
Per direct

Download Brochure


Delen:
  • Omschrijving

    Deze woning is gesitueerd in een indrukwekkend monumentaal schoolgebouw uit de jaren 20, gelegen in de gewilde Kleverpark buurt dat is getransformeerd in 2022 tot 178 luxe, gerenoveerde en nieuwgebouwde appartementen. Ook zijn er bij het complex twee gemeenschappelijke tuinen, gemeenschappelijke fiets bergingen en gemeenschappelijke elektrische deelauto’s en -fietsen via het bedrijf HELY Deelvervoer.

    Alle appartementen zijn voorzien van een vloerverwarming/koelsysteem (geen gas in het gebouw). De woningen worden opgeleverd ZONDER vloerbedekking, gordijnen of lampen – de huurder dient dit zelf te regelen of over te nemen van de huidige huurder. Aan het einde van de huurperiode dient de woning in dezelfde beginstaat te worden opgeleverd, tenzij de volgende huurder bereid is deze toegevoegde zaken over te nemen.

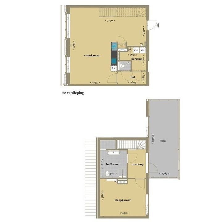
    Dit bijzondere maisonnette appartement aan de Verspronckweg 150 C36, gelegen op de tweede verdieping, wordt aangeboden inclusief een parkeerplaats in de ondergelegen garage en een externe berging.

    Indeling:
    Lift of trap naar 2e verdieping: entree, open woonkamer met complete keuken (v.v. inductiekookplaat, vaatwasser, combi-oven, koelkast met vriesvak en afzuigkap). Hal met toilet en ruime berging met aansluitingen voor wasmachine en droger.

    Trap naar 2e verdieping: overloop met toegang naar terras. Slaapkamer en ruime badkamer met inloopdouche, wastafel en toilet.

    Waarborgsom is afhankelijk van de persoonlijke situatie van de huurder (als u bijvoorbeeld zzp'er bent of een tijdelijk contract heeft, dan is de borg 2 maanden).

    Diversen:
    Woonoppervlakte 93m2;
    Maisonnette met 2 verdiepingen
    Ruim terras
    Volledig keuken (nductiekookplaat, vaatwasser, combi-oven, koelkast met vriesvak en afzuigkap) en badkamer (uit 2021), alle muren zijn behang klaar en geschilderd;
    Verder wordt de woning kaal opgeleverd: bij C36 is de
    GEEN GAS IN HET GEHELE COMPLEX;
    Vloerverwarming en -koeling;
    Minimaal huurperiode is 12 maanden, onbepaalde huurovereenkomst;
    Borg maximaal 2 maanden;
    Niet geschikte voor studenten of kandidaten zonder inkomsten of vermogen (ook niet met een borgsteller).
    Huisdieren wel toegestaan.

  • Locatie

    [ { "address": "Verspronckweg 150", "zipCode": "2023 BP", "city": "Haarlem", "lat": 52.3950869, "lng": 4.6271112, "heading": 0, "pitch": 0 } ]
  • Kenmerken

    Overdracht

    Prijs
    € 2.185 p.m. ex.
    Inrichting
    Kaal
    Status
    Beschikbaar
    Oplevering
    Per direct

    Bouw

    Soort appartement
    Maisonnette, Appartement
    Soort bouw
    Bestaande bouw
    Bouwjaar
    2021
    Onderhoud binnen
    Uitstekend
    Onderhoud buiten
    Uitstekend

    Oppervlakten en inhoud

    Woonoppervlakte
    93m²
    Inhoud
    364m³

    Indeling

    Aantal kamers
    2
    Aantal slaapkamers
    1
    Verdiepingen
    2

    Energie

    Energielabel
    A

    Garage

    Soort garage
    Parkeerplaats
  • Reageer

    Uw bericht is naar ons verzonden. Wij nemen zo snel mogelijk contact met u op.

    Sorry, we kunnen helaas niet met zekerheid vaststellen of je een mens of een geautomatiseerde bot/spammer bent. Hierdoor kunnen we het formulier dat je hebt ingevuld niet verzenden. Probeer het opnieuw of neem direct contact op met de makelaar via e-mail.

    Er is iets mis gegaan met het versturen van het formulier.
    Controleer of u alle velden (goed) heeft ingevoerd en probeer het nog een keer.

    recaptcha
    reCAPTCHA
    PrivacyTerms

Vergelijkbare woningen

Verspronckweg 150 C12 Verhuurd
Verspronckweg 150 C12
2023 BP Haarlem
€ 2.450 p.m. ex.
141m² 999m³ 4 kamers
President Steijnstraat 149 Verhuurd
President Steijnstraat 149
2021 VD Haarlem
€ 2.500 p.m. ex.
95m² 235m³ 4 kamers
Verspronckweg 150 B01 Verhuurd
Verspronckweg 150 B01
2023 BP Haarlem
€ 1.935 p.m. ex.
113m² 472m³ 2 kamers
Verspronckweg 150 A12 Verhuurd
Verspronckweg 150 A12
2023 BP Haarlem
€ 1.910 p.m. ex.
103m² 432m³ 2 kamers
×

Huren in De Meester

Appartementen in Haarlem

Schrijf u nu in!
Lighthouse Property Services
Lighthouse Property Services