Lighthouse Property Services gebruikt cookies om de website naar behoren te laten werken, om functies voor social media te bieden en om onze website te analyseren. Op onze website kun je ons Cookiebeleid en AVG & Privacybeleid vinden.

Verspronckweg 150 C38, Haarlem

Kenmerken

Onder optie
Prijs
€ 1.993 p.m. ex.
Inrichting
Kaal
Wijk
Kleverpark-noord
Postcode
2023 BP Haarlem
Woningtype
Portiekflat
Bouwjaar
2021
Soort bouw
Bestaande bouw
Parkeren
Garage, Parkeerkelder
Kamers
2
Slaapkamers
1
Oppervlakte
67m²
Inhoud
177m³
Oplevering
In overleg

Download Brochure


Delen:
  • Omschrijving

    DE FOTO'S VAN HET APPARTEMENT ZIJN EEN IMPRESSIE!

    Deze woning is gesitueerd in een indrukwekkend monumentaal schoolgebouw uit de jaren 20, gelegen in de gewilde Kleverpark buurt, dat is getransformeerd in 2021 tot 178 luxe, gerenoveerde en nieuwgebouwde appartementen. Bij het complex zijn twee gemeenschappelijke tuinen, een parkeergarage, gemeenschappelijke fietsenbergingen en elektrische deelauto’s en -fietsen via het bedrijf HELY Deelvervoer.

    Alle appartementen zijn voorzien van een vloerverwarming/koelsysteem in combinatie met een waterpomp (geen gas in het gebouw). De woningen worden opgeleverd ZONDER vloerbedekking, gordijnen of lampen – de huurder dient dit zelf te regelen. Aan het einde van de huurperiode dient de woning in dezelfde beginstaat te worden opgeleverd, tenzij de volgende huurder bereid is deze toegevoegde zaken over te nemen.

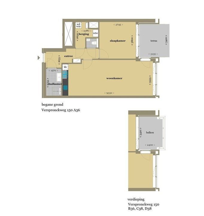
    Dit lichte appartement aan de Verspronckweg 150 C38, gelegen op de derde woonlaag met balkon met uitzicht op de binnentuin, wordt aangeboden inclusief een parkeerplaats in de ondergelegen garage. De huidige huurder heeft in ieder geval de vloer ter overname.

    Indeling:
    klein trapje naar entree, gang. Badkamer met wastafel en inloopdouche. Separaat toilet. Inpandige berging met aansluiting wasmachine/droger. Slaapkamer met toegang tot het ruime balkon. Royale woonkamer met open, complete keuken (v.v. inductiekookplaat, vaatwasser, combi-oven/magnetron, koelkast met vriesvak en afzuigkap) met tevens deur naar het ruime balkon.

    Waarborgsom is afhankelijk van de persoonlijke situatie van de huurder (als u bijvoorbeeld zzp'er bent of minder dan 6 maanden in Nederland heeft gewoond is de borg 2 maanden).

    Diversen:
    Woonoppervlakte 67m2;
    Volledige keuken (vaatwasser, koel-/vriescombinatie, inductiekookplaat, combi-oven) en badkamer (uit 2021), alle wanden zijn gestuct en geschilderd;
    Verder wordt de woning kaal/ongemeubileerd opgeleverd: de vorige huurder heeft in ieder geval de vloer ter overname;
    GEEN GAS IN HET HELE COMPLEX;
    Vloerverwarming en -koeling;
    Minimale huurperiode bedraagt 12 maanden, huurovereenkomst voor onbepaalde tijd.
    Borg maximaal 2 maanden;
    Niet geschikt voor studenten of kandidaten zonder inkomen of voldoende vermogen om de huur te betalen (ook niet met garantsteller).
    Huisdieren zijn toegestaan.

  • Locatie

    [ { "address": "Verspronckweg 150", "zipCode": "2023 BP", "city": "Haarlem", "lat": 52.3949342, "lng": 4.626979, "heading": 0, "pitch": 0 } ]
  • Kenmerken

    Overdracht

    Prijs
    € 1.993 p.m. ex.
    Inrichting
    Kaal
    Status
    Onder optie
    Oplevering
    In overleg

    Bouw

    Soort appartement
    Portiekflat, Appartement
    Soort bouw
    Bestaande bouw
    Bouwjaar
    2021
    Onderhoud binnen
    Uitstekend
    Onderhoud buiten
    Uitstekend

    Oppervlakten en inhoud

    Woonoppervlakte
    67m²
    Inhoud
    177m³

    Indeling

    Aantal kamers
    2
    Aantal slaapkamers
    1
    Verdiepingen
    1

    Energie

    Energielabel
    A

    Garage

    Soort garage
    Parkeerkelder
  • Reageer

    Uw bericht is naar ons verzonden. Wij nemen zo snel mogelijk contact met u op.

    Sorry, we kunnen helaas niet met zekerheid vaststellen of je een mens of een geautomatiseerde bot/spammer bent. Hierdoor kunnen we het formulier dat je hebt ingevuld niet verzenden. Probeer het opnieuw of neem direct contact op met de makelaar via e-mail.

    Er is iets mis gegaan met het versturen van het formulier.
    Controleer of u alle velden (goed) heeft ingevoerd en probeer het nog een keer.

    recaptcha
    reCAPTCHA
    PrivacyTerms

Vergelijkbare woningen

Verspronckweg 150 C22 Verhuurd
Verspronckweg 150 C22
2023 BP Haarlem
€ 1.675 p.m. ex.
94m² 999m³ 2 kamers
Verspronckweg 150 B27 Verhuurd
Verspronckweg 150 B27
2023 BP Haarlem
€ 2.120 p.m. ex.
147m² 623m³ 4 kamers
Meester Cornelisstraat 151 Verhuurd
Meester Cornelisstraat 151
2023 DE Haarlem
€ 1.770 p.m. ex.
107m² 207m³ 2 kamers
Peltenburgstraat 19 Verhuurd
Peltenburgstraat 19
2033 ES Haarlem
€ 2.350 p.m. ex.
85m² 267m³ 3 kamers
×

Huren in De Meester

Appartementen in Haarlem

Schrijf u nu in!
Lighthouse Property Services
Lighthouse Property Services